ようこそ ゲスト 様

川越市 賃貸店舗・事務所

ActreeKAWAGOE

お問い合わせ番号:f11072-154539
賃貸店舗・事務所
川越市新富町1-3-5
本川越駅 ( 徒歩 3分 )
賃料 64.90万円(税込)
(坪単価:1.65万円)
本川越駅から徒歩3分の好立地
スケルトン・エレベーターあり
物販・事務所等におすすめです
管理費
共益費
88,000円(税込)
-
保証金
解約引
-
-
敷金
礼金
10ヶ月
1ヶ月
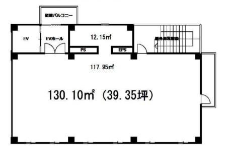
建物/専有
面積
130.10m2
(39.35坪)
土地面積 - 築年月 2014年6月
(平成26年6月)
駐車場 - 所在階 4階 地上階数
地下階数
9階
-
構造 鉄骨造
用途地域 商業地域
現況 空き
入居/引渡 相談 
取引 仲介
物件登録日 2025年10月27日
情報更新日 2025年10月27日
・飲食店不可
・契約期間/3年(定期賃貸借)
・保証会社審査有
・防火指定/準防火地域
・諸条件応相談

ActreeKAWAGOE 周辺地図

ActreeKAWAGOE  のことならお気軽にご相談ください。
テナントショップ川越(㈱Laugh Life)
TEL:049-227-6227
営業時間:10:00-17:00(完全予約制)
定休日 :水、土、日、祝日(事前予約可能)
メールでのお問い合わせ

お電話の場合は「テナントショップを見ました。物件番号は < f11072-154539 > です」と伝えていただくとスムーズにお応えできます。

  • 借りる
  • 店舗を探す
  • 事務所・事業所を探す
  • 倉庫・工場を探す
  • 借地を探す
  • 居抜き物件
非公開物件情報
一般公開物件
144
会員用非公開物件
0
  • ログイン
  • 新規登録
  • 買う
  • 売地を探す
フリーワード検索 [New!]
スペース区切りの複合語句検索はできません

  • 依頼する
  • 新着物件!未公開物件!地元に詳しい!
  • 物件リクエスト
  • スマホで物件検索
  • 実績紹介
  • 物件管理
  • 会社概要・アクセス