ようこそ ゲスト 様

川越市 賃貸店舗・事務所

アトランタビル壱号館

お問い合わせ番号:f11072-153753
賃貸店舗・事務所
川越市菅原町23-1
川越駅 ( 徒歩 3分 )
賃料 198.00万円
(坪単価:0.66万円)
川越駅徒歩3分、事務所や学習塾などに
人通りの多く賑やかな立地に建つ商業ビルの最上階
外観は石造りで高級感のあるビルです
管理費 55,000円
保証金
解約引
10ヶ月
-
敷金
礼金
更新料
-
2ヶ月
1ヶ月
建物/専有
面積
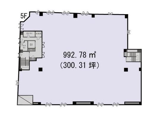
992.78m2
(300.31坪)
土地面積 - 築年月 1992年1月
(平成4年1月)
駐車場 有り有料
(16,500円)
所在階 5階 地上階数
地下階数
5階
1階
構造 鉄骨鉄筋コンクリート造(SRC)
用途地域 商業地域
現況 空き
入居/引渡 期日指定 
引渡年月 2026年02月中旬
契約期間 10年
取引 仲介
物件登録日 2025年10月16日
情報更新日 2025年10月16日
・接道状況:北 公道・西 公道・二方道路
・利用時間制限あり(7:30~22:30)
・更新事務手数料有(新賃料0.25ヶ月)
・駐車場有:16,500円/月 同ビル内に立体駐車場あり(車高・車体重量・利用時間等に制限あり)。※別途契約 ※要空き確認
・保証金償却:解約時50% 初回契約から5年未満での解約の場合は50%、5~10年未満解約の場合10%、10年以降償却無し
・賃貸保証等:加入要(株式会社USEN TRUST 【初回:毎月支払い総額100% 更新:毎月支払い総額10%/年(最低金額10000円)引落手数料:330円/月】)
・火災保険:要 借家人賠償責任保険 指定保険要加入 
・共有部分に男女別トイレあり、エレベーター、スケルトン、分割相談可、電灯、動力225Aまで、給排水なし(設置応相談)、土日・祝日利用可、1フロア1テナント、最上階 

アトランタビル壱号館 周辺地図

アトランタビル壱号館 のことならお気軽にご相談ください。
テナントショップ川越(㈱Laugh Life)
TEL:049-227-6227
営業時間:10:00-17:00(完全予約制)
定休日 :水、土、日、祝日(事前予約可能)
メールでのお問い合わせ

お電話の場合は「テナントショップを見ました。物件番号は < f11072-153753 > です」と伝えていただくとスムーズにお応えできます。

  • 借りる
  • 店舗を探す
  • 事務所・事業所を探す
  • 倉庫・工場を探す
  • 借地を探す
  • 居抜き物件
非公開物件情報
一般公開物件
144
会員用非公開物件
0
  • ログイン
  • 新規登録
  • 買う
  • 売地を探す
フリーワード検索 [New!]
スペース区切りの複合語句検索はできません

  • 依頼する
  • 新着物件!未公開物件!地元に詳しい!
  • 物件リクエスト
  • スマホで物件検索
  • 実績紹介
  • 物件管理
  • 会社概要・アクセス