ようこそ ゲスト 様

川越市 賃貸店舗・事務所

井上ビル 2階

お問い合わせ番号:f11072-147927
賃貸店舗・事務所
川越市幸町14-5
本川越駅 ( 徒歩 16分 )
賃料 25.00万円(税別)
(坪単価:1.06万円)
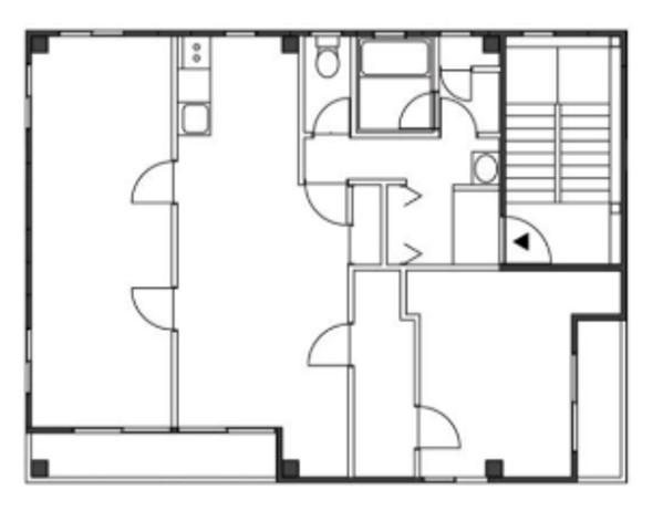
川越市幸町の貸店舗・事務所です
業種等ご相談ください
民泊不可
管理費 -
保証金
解約引
-
-
敷金
礼金
6ヶ月
1ヶ月
建物/専有
面積
78.00m2
(23.59坪)
土地面積 - 築年月 1993年12月
(平成5年12月)
駐車場 有り有料/2台
(25,000円(税別))
所在階 2階 地上階数
地下階数
3階
-
構造 鉄骨造
用途地域 商業地域
現況 使用中
入居/引渡 期日指定 
引渡年月 2026年04月
契約期間 2年
取引 仲介
物件登録日 2025年7月18日
情報更新日 2025年7月24日
・更新料:新賃料1ケ月
・敷金償却:解約時20%
・保証会社:加入要
・保険:加入要
・解約予告:6ヶ月前
・駐車場:敷金1ケ月 空き要確認(屋根有)
・電気、ガス、上下水道
・専有面積はベランダ込み
・物件の内装の現状は居住用です。
井上ビル 2階 のことならお気軽にご相談ください。
テナントショップ川越(㈱Laugh Life)
TEL:049-227-6227
営業時間:10:00-17:00(完全予約制)
定休日 :水、土、日、祝日(事前予約可能)
メールでのお問い合わせ

お電話の場合は「テナントショップを見ました。物件番号は < f11072-147927 > です」と伝えていただくとスムーズにお応えできます。

  • 借りる
  • 店舗を探す
  • 事務所・事業所を探す
  • 倉庫・工場を探す
  • 借地を探す
  • 居抜き物件
非公開物件情報
一般公開物件
144
会員用非公開物件
0
  • ログイン
  • 新規登録
  • 買う
  • 売地を探す
フリーワード検索 [New!]
スペース区切りの複合語句検索はできません

  • 依頼する
  • 新着物件!未公開物件!地元に詳しい!
  • 物件リクエスト
  • スマホで物件検索
  • 実績紹介
  • 物件管理
  • 会社概要・アクセス