ようこそ ゲスト 様

川越市 賃貸店舗・事務所

脇田本町ビル

お問い合わせ番号:f11072-146828
賃貸店舗・事務所
川越市脇田本町11-26
川越駅 ( 徒歩 5分 )
賃料 31.90万円(税込)
(坪単価:0.88万円)
川越駅より徒歩5分で駅至近
重飲食・軽飲食・物販・サービス等可能
スケルトン渡しとなります
管理費 11,000円(税込)
保証金
解約引
6ヶ月
-
敷金
礼金
-
2ヶ月(税別)
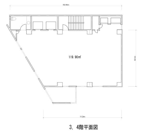
建物/専有
面積
119.90m2
(36.26坪)
土地面積 - 築年月 2000年4月
(平成12年4月)
駐車場 - 所在階 4階 地上階数
地下階数
5階
-
構造 鉄筋コンクリート造(RC)
用途地域 商業地域
現況 使用中
入居/引渡 相談 
取引 仲介
物件登録日 2025年7月5日
情報更新日 2025年7月5日
・賃料:319,088円(税込)になります
・定期借家契約10年間(相談可能)
・保証会社加入要
・再契約料:新賃料の1ヶ月分(税別)
・現在:和食屋
・EV2基・共有、階段有
・24時間利用可能、看板設置個所:相談可能、看板料:相談、造作代金なし
脇田本町ビル のことならお気軽にご相談ください。
テナントショップ川越(㈱Laugh Life)
TEL:049-227-6227
営業時間:10:00-17:00(完全予約制)
定休日 :水、土、日、祝日(事前予約可能)
メールでのお問い合わせ

お電話の場合は「テナントショップを見ました。物件番号は < f11072-146828 > です」と伝えていただくとスムーズにお応えできます。

  • 借りる
  • 店舗を探す
  • 事務所・事業所を探す
  • 倉庫・工場を探す
  • 借地を探す
  • 居抜き物件
非公開物件情報
一般公開物件
136
会員用非公開物件
0
  • ログイン
  • 新規登録
  • 買う
  • 売地を探す
フリーワード検索 [New!]
スペース区切りの複合語句検索はできません

  • 依頼する
  • 新着物件!未公開物件!地元に詳しい!
  • 物件リクエスト
  • スマホで物件検索
  • 実績紹介
  • 物件管理
  • 会社概要・アクセス