ようこそ ゲスト 様

川越市 賃貸店舗・事務所

第8川越ビル

お問い合わせ番号:f11072-142193
賃貸店舗・事務所
川越市新富町2-1-5
本川越駅 ( 徒歩 1分 )
賃料 80.00万円(税別)
(坪単価:1.06万円)
本川越駅から徒歩1分の好立地
人気のクレアモール沿いの1階店舗です
飲食店応相談
管理費
共益費
-
10万円(税別)
保証金
解約引
700万円
-
敷金
礼金
更新料
-
1ヶ月(税別)
1ヶ月
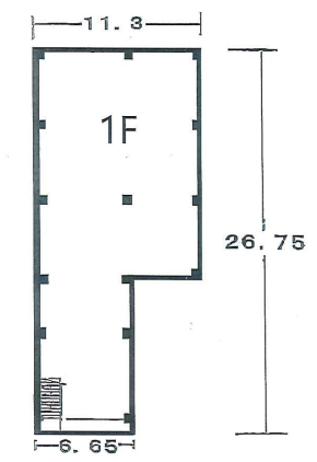
建物/専有
面積
248.60m2
(75.2坪)
土地面積 - 築年月 1998年6月
(平成10年6月)
駐車場 - 所在階 2階 地上階数
地下階数
3階
-
構造 鉄筋コンクリート造(RC)
用途地域 商業地域
現況 空き
入居/引渡 相談 
契約期間 3年
取引 仲介
物件登録日 2025年5月16日
情報更新日 2025年9月11日
現ネットカフェ店
保証金償却 中途解約25% 満期20%
保証会社:加入要
保険:加入要(指定有り)  
看板設置費テナント負担
看板使用料2万円(税別)
消費税別途要
ゴミ業者指定有り

第8川越ビル 周辺地図

第8川越ビル のことならお気軽にご相談ください。
テナントショップ川越(㈱Laugh Life)
TEL:049-227-6227
営業時間:10:00-17:00(完全予約制)
定休日 :水、土、日、祝日(事前予約可能)
メールでのお問い合わせ

お電話の場合は「テナントショップを見ました。物件番号は < f11072-142193 > です」と伝えていただくとスムーズにお応えできます。

  • 借りる
  • 店舗を探す
  • 事務所・事業所を探す
  • 倉庫・工場を探す
  • 借地を探す
  • 居抜き物件
非公開物件情報
一般公開物件
144
会員用非公開物件
0
  • ログイン
  • 新規登録
  • 買う
  • 売地を探す
フリーワード検索 [New!]
スペース区切りの複合語句検索はできません

  • 依頼する
  • 新着物件!未公開物件!地元に詳しい!
  • 物件リクエスト
  • スマホで物件検索
  • 実績紹介
  • 物件管理
  • 会社概要・アクセス