ようこそ ゲスト 様

富士見市 賃貸店舗・事務所

富士見市関沢テナント C棟

お問い合わせ番号:f11072-136693
賃貸店舗・事務所
富士見市関沢3
みずほ台駅 ( 徒歩 7分 )
賃料 21.60万円(税別)
(坪単価:1.25万円)
令和7年11月入居可能 スケルトン渡し
5年以上20年以内の定期借家 相談可
管理費 -
保証金
解約引
-
-
敷金
礼金
10ヶ月
1ヶ月
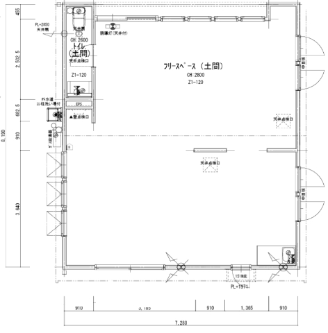
建物/専有
面積
57.13m2
(17.28坪)
土地面積 - 築年月 2025年6月
(令和7年6月)
駐車場 有/21台 所在階 1階 地上階数
地下階数
1階
-
構造 木造
入居/引渡 期日指定 
引渡年月 2025年11月
取引 仲介
物件登録日 2025年2月22日
情報更新日 2025年2月24日
・敷金相談可
・契約期間:5年以上20年以内(定期)※更新可
・テナント内装工事は令和7年6月頃から順次可能※外構工事と併行可能 
・スケルトン状態での貸与(トイレやキッチン、照明設備は一部設置)※ミサワホームでの内装工事を推奨
・敷地内駐車場21台有(共同利用)※各テナント1台までは従業員使用可能
・設備:プロパンガス・東京電力・公共下水・公営水道
・退去時:スケルトン渡し
・火災保険:管理会社指定
・保証会社:日本セーフティー 初回保証料100% 継続保証料10%/年

富士見市関沢テナント C棟 周辺地図

富士見市関沢テナント C棟 のことならお気軽にご相談ください。
テナントショップ川越(㈱Laugh Life)
TEL:049-227-6227
営業時間:10:00-17:00(完全予約制)
定休日 :水、土、日、祝日(事前予約可能)
メールでのお問い合わせ

お電話の場合は「テナントショップを見ました。物件番号は < f11072-136693 > です」と伝えていただくとスムーズにお応えできます。

  • 借りる
  • 店舗を探す
  • 事務所・事業所を探す
  • 倉庫・工場を探す
  • 借地を探す
  • 居抜き物件
非公開物件情報
一般公開物件
144
会員用非公開物件
0
  • ログイン
  • 新規登録
  • 買う
  • 売地を探す
フリーワード検索 [New!]
スペース区切りの複合語句検索はできません

  • 依頼する
  • 新着物件!未公開物件!地元に詳しい!
  • 物件リクエスト
  • スマホで物件検索
  • 実績紹介
  • 物件管理
  • 会社概要・アクセス