ようこそ ゲスト 様

川越市 賃貸店舗・事務所

稲生ビル

お問い合わせ番号:f11072-136176
賃貸店舗・事務所
川越市菅原町9-16
川越駅 ( 徒歩 3分 )
賃料 39.60万円
(坪単価:0.94万円)
川越駅東口から徒歩3分
事務所に最適です
管理費 11,000円
保証金
解約引
-
-
敷金
礼金
更新料
3ヶ月
2ヶ月
1ヶ月
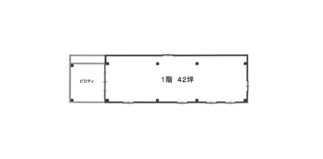
建物/専有
面積
140.00m2
(42.35坪)
土地面積 - 築年月 1988年12月
(昭和63年12月)
駐車場 所在階 1階 地上階数
地下階数
3階
-
構造 鉄骨造
用途地域 商業地域
バルコニー
現況 空き
入居/引渡 相談 
契約期間 3年
取引 仲介
物件登録日 2025年2月10日
情報更新日 2025年2月10日
・更新料:新賃料の1ヶ月
・賃貸保証等:加入要(初回:賃料の100% 年間保証料:滞納回数により変動)
・保険等:加入要
・主要採光面:南向き
・スケルトン渡し
・各種相談可、営業所や医院、美容室や事務所にも好立地

稲生ビル 周辺地図

稲生ビル のことならお気軽にご相談ください。
テナントショップ川越(㈱Laugh Life)
TEL:049-227-6227
営業時間:10:00-17:00(完全予約制)
定休日 :水、土、日、祝日(事前予約可能)
メールでのお問い合わせ

お電話の場合は「テナントショップを見ました。物件番号は < f11072-136176 > です」と伝えていただくとスムーズにお応えできます。

  • 借りる
  • 店舗を探す
  • 事務所・事業所を探す
  • 倉庫・工場を探す
  • 借地を探す
  • 居抜き物件
非公開物件情報
一般公開物件
136
会員用非公開物件
0
  • ログイン
  • 新規登録
  • 買う
  • 売地を探す
フリーワード検索 [New!]
スペース区切りの複合語句検索はできません

  • 依頼する
  • 新着物件!未公開物件!地元に詳しい!
  • 物件リクエスト
  • スマホで物件検索
  • 実績紹介
  • 物件管理
  • 会社概要・アクセス