ようこそ ゲスト 様

川越市 賃貸店舗・事務所

中村ビル

お問い合わせ番号:f11072-134918
賃貸店舗・事務所
川越市脇田本町7-9
川越駅 ( 徒歩 3分 )
賃料 18.15万円(税込)
(坪単価:1.41万円)
川越駅徒歩3分の駅近です
エレベーター有
学習塾・事務所に最適
管理費 11,000円
保証金
解約引
-
-
敷金
礼金
3ヶ月
1ヶ月
建物/専有
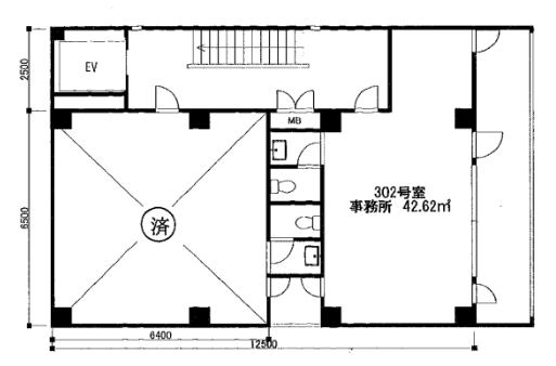
面積
42.62m2
(12.89坪)
土地面積 - 築年月 1988年
(昭和63年)
駐車場 - 所在階 3階 地上階数
地下階数
5階
-
現況 空き
入居/引渡 相談 
契約期間 3年
取引 仲介
物件登録日 2025年1月16日
情報更新日 2025年10月2日
・トイレ、エアコン付き
・飲食業・深夜営業不可(夜10時まで)
・保証会社加入要
・リフォーム後引渡し
・電気・水道料金 子メーター振り分けにて請求

中村ビル 周辺地図

中村ビル のことならお気軽にご相談ください。
テナントショップ川越(㈱Laugh Life)
TEL:049-227-6227
営業時間:10:00-17:00(完全予約制)
定休日 :水、土、日、祝日(事前予約可能)
メールでのお問い合わせ

お電話の場合は「テナントショップを見ました。物件番号は < f11072-134918 > です」と伝えていただくとスムーズにお応えできます。

  • 借りる
  • 店舗を探す
  • 事務所・事業所を探す
  • 倉庫・工場を探す
  • 借地を探す
  • 居抜き物件
非公開物件情報
一般公開物件
144
会員用非公開物件
0
  • ログイン
  • 新規登録
  • 買う
  • 売地を探す
フリーワード検索 [New!]
スペース区切りの複合語句検索はできません

  • 依頼する
  • 新着物件!未公開物件!地元に詳しい!
  • 物件リクエスト
  • スマホで物件検索
  • 実績紹介
  • 物件管理
  • 会社概要・アクセス