ようこそ ゲスト 様

川越市 賃貸店舗・事務所

川越駅前ビル

お問い合わせ番号:f11072-129497
賃貸店舗・事務所
川越市脇田本町16-23
川越駅 ( 徒歩 2分 )
賃料 39.11万円(税別)
(坪単価:1.40万円)
川越駅から徒歩2分の好立地 視認性抜群
管理費 -
保証金
解約引
-
-
敷金
礼金
10ヶ月
-
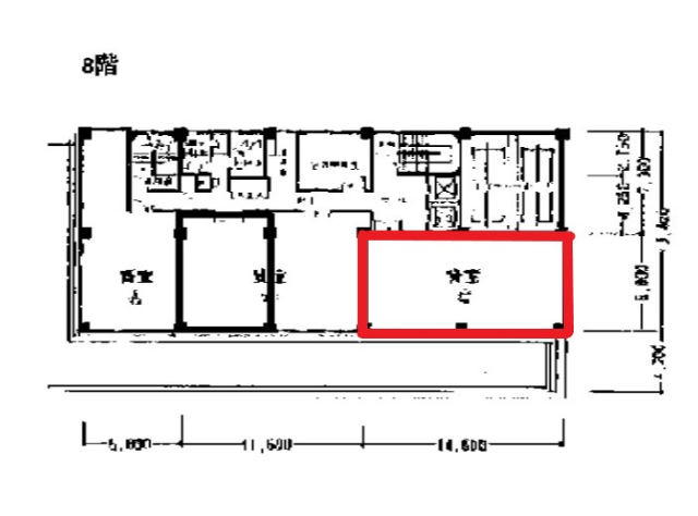
建物/専有
面積
92.34m2
(27.93坪)
土地面積 - 築年月 1984年5月
(昭和59年5月)
駐車場 所在階 8階 地上階数
地下階数
8階
1階
構造 鉄骨鉄筋コンクリート造(SRC)
用途地域 商業地域
入居/引渡 相談 
取引 仲介
物件登録日 2024年10月8日
情報更新日 2025年1月31日
・賃料:391,160円になります(税別)
・駐車場:機械式
・冷暖房、ELV2基、防犯カメラ

川越駅前ビル 周辺地図

川越駅前ビル のことならお気軽にご相談ください。
テナントショップ川越(㈱Laugh Life)
TEL:049-227-6227
営業時間:10:00-17:00(完全予約制)
定休日 :水、土、日、祝日(事前予約可能)
メールでのお問い合わせ

お電話の場合は「テナントショップを見ました。物件番号は < f11072-129497 > です」と伝えていただくとスムーズにお応えできます。

  • 借りる
  • 店舗を探す
  • 事務所・事業所を探す
  • 倉庫・工場を探す
  • 借地を探す
  • 居抜き物件
非公開物件情報
一般公開物件
144
会員用非公開物件
0
  • ログイン
  • 新規登録
  • 買う
  • 売地を探す
フリーワード検索 [New!]
スペース区切りの複合語句検索はできません

  • 依頼する
  • 新着物件!未公開物件!地元に詳しい!
  • 物件リクエスト
  • スマホで物件検索
  • 実績紹介
  • 物件管理
  • 会社概要・アクセス