ようこそ ゲスト 様

川越市 賃貸店舗・事務所

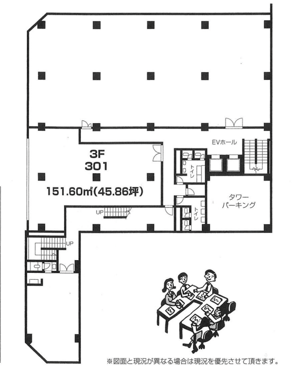
カーニープレイス川越 3階

お問い合わせ番号:f11072-112501
賃貸店舗・事務所
川越市脇田本町14-23
川越駅 ( 徒歩 3分 )
賃料 50.44万円(税込)
(坪単価:1.10万円)
賃料 504,460円(税込)
管理人常駐(月〜金)
OAフロアー
LED照明
倉庫        9.07坪 49,885円(税込)
地下一階  4.80坪 26,400円(税込)
敷金6ヶ月
倉庫のみの契約は不可
管理費 131,160円
保証金
解約引
-
-
敷金
礼金
10ヶ月
-
建物/専有
面積
151.60m2
(45.85坪)
土地面積 - 築年月 1984年11月
(昭和59年11月)
駐車場 - 所在階 3階 地上階数
地下階数
7階
1階
構造 鉄筋コンクリート造(RC)
入居/引渡 相談 
契約期間 2年
取引 仲介
物件登録日 2023年10月17日
情報更新日 2023年10月17日
カーニープレイス川越 3階 のことならお気軽にご相談ください。
テナントショップ川越(㈱Laugh Life)
TEL:049-227-6227
営業時間:10:00-17:00(完全予約制)
定休日 :水、土、日、祝日(事前予約可能)
メールでのお問い合わせ

お電話の場合は「テナントショップを見ました。物件番号は < f11072-112501 > です」と伝えていただくとスムーズにお応えできます。

  • 借りる
  • 店舗を探す
  • 事務所・事業所を探す
  • 倉庫・工場を探す
  • 借地を探す
  • 居抜き物件
非公開物件情報
一般公開物件
144
会員用非公開物件
0
  • ログイン
  • 新規登録
  • 買う
  • 売地を探す
フリーワード検索 [New!]
スペース区切りの複合語句検索はできません

  • 依頼する
  • 新着物件!未公開物件!地元に詳しい!
  • 物件リクエスト
  • スマホで物件検索
  • 実績紹介
  • 物件管理
  • 会社概要・アクセス